The Clock House
Information on the restoration project for the Clock House in Ramsgate

The UK Government is providing more than £22 million to fund the Ramsgate regeneration projects.
This money combines three previous funds: the Future High Streets Fund, Town Deal, and Levelling Up Fund. Together, these are now called the Local Regeneration Fund.
This fund pays for major building and improvement works across the district. The goal is to bring new life to Ramsgate and help its economy grow over the long term. This funding will be available until 2028.
This project will transform and improve Ramsgate Royal Harbour. It will bring new life to the Grade II* listed building, creating a modern space for historical exhibitions while protecting the special maritime (seafaring) history of Ramsgate.
The work will protect the museum’s current collections and create lively public spaces for both locals and visitors.
The project will:
- Carefully restore the Grade II* Listed building.
- Create modern exhibition spaces.
- Demolish and remove the existing containers next to the Clock House.
- Build a new café extension next to the Clock House.
This project goes beyond simple restoration; it transforms a much-loved building into a destination. By creating a modern environment, we are providing residents with a vibrant new hub for cultural life. The building work for the restoration and extension officially started in August 2025. Willmott Dixon Construction is carrying out the work to bring the Clock House and Café to life.
Once construction is complete later this year, this beloved building will officially re-open its doors to the public! While the full museum experience is still being perfected, we are currently working with the expert consultants at Hayley Sharpe to reimagine how we share Ramsgate’s unique history.
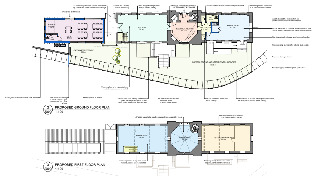
Proposed plans showing the ground and first floor for the refurbished Clock House and new café

Proposed elevation drawings showing the exterior of the refurbished Clock House and new café

Curl la Tourelle Head Architects created the first designs to refurbish and extend the Clock House in Ramsgate Royal Harbour. Purcell Architects then finished the design work.
PermalinkFull details are on the Planning portal using reference; L/TH/25/0206 and F/TH/25/0207
PermalinkThe council will soon start looking for an experienced operator to manage the new space.
We will work with a specialist agent to advertise this opportunity starting in early 2026. Our goal is to officially appoint a partner by Summer 2026.
PermalinkIn early 2026, the council met to discuss how the Museum should be managed.
We have agreed in principle (made a general agreement) that the council will run the space, but we still need to make a final, formal decision.
We expect to officially confirm everything by Summer 2026.
The building’s restoration will be finished before the museum displays are ready. Because of this, we will open the areas early as “meanwhile spaces” (temporary spaces) for heritage activities.
Doing this gives us time to work with museum design experts to create a museum that Ramsgate can be proud of. It also gives us time to raise money for artefact conservation (protecting and repairing historical objects) and modern, interactive ways to tell the history.
Most importantly, this plan allows people to access and enjoy the beautifully restored building right away.
PermalinkAs we repair the building, we are also rethinking what the Clock House Museum can offer.
We want the new galleries to be exciting and modern, so we have partnered with the museum experts at Haley Sharpe.
To make sure the museum tells the amazing stories of our town’s maritime (seafaring) history, the two ideas below were shaped by community feedback in early 2026. We listened to local heritage groups, residents, community organisations, and schools.
Haley Sharpe aims to finish this work by March 2026.
Proposed internal layout for the Clock House gallery spaces (Option 1)

Proposed internal layout for the Clock House gallery spaces (Option 2)

View the boards displayed at the July 2023 public engagement for Clockhouse and Pier Yard.
If you require any of this information in alternative formats, please contact ramsgate-future@thanet.gov.uk
Permalink

































